
HD typ elektrický žeriav elektrický jednopriestorový elektrický výťah
Európsky žeriav s jednoduchým nosníkom je kompaktné zdvíhacie stroje navrhnuté a vyrábané v prísnom súlade s normou FEM a DIN, ktoré s modernými technológiami a krásnym dizajnom. Rozdelené na všeobecný typ a typ zavesenia, ktoré podporujú používanie elektrického zdviháka európskeho štandardu, vhodné na manipuláciu s dielenskými a skladovými materiálmi, presnú montáž veľkých častí a iné miesta.
HD typ elektrický žeriav elektrický jednopriestorový elektrický výťah
Stručný popis:
Európsky žeriav s jednoduchým nosníkom je kompaktné zdvíhacie stroje navrhnuté a vyrábané v prísnom súlade s normou FEM a DIN, ktoré s modernými technológiami a krásnym dizajnom. Rozdelené na všeobecný typ a typ zavesenia, ktoré podporujú používanie elektrického zdviháka európskeho štandardu, vhodné na manipuláciu s dielenskými a skladovými materiálmi, presnú montáž veľkých častí a iné miesta.

Mohol by sa široko používať v strojárstve, hutníctve, ropnom priemysle, petrifaction, prístavoch, železnici, civilnej leteckej doprave, potravinách, papierenskom priemysle, stavebníctve, dielni elektronického priemyslu, skladom a iným manipulačným materiálom. aplikované na manipuláciu s materiálom, ktoré vyžadujú presné umiestnenie, presné montážne situácie veľkých častí.

Podrobné obrázky:

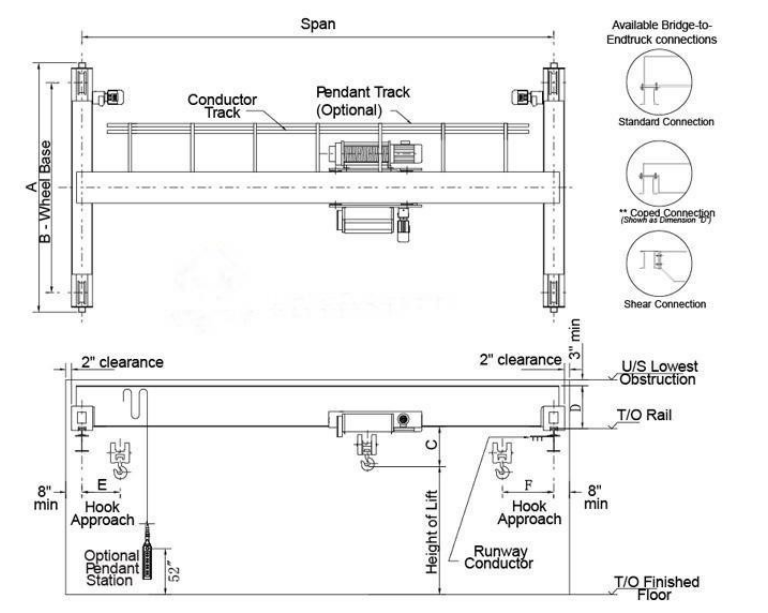
Nákres náčrtov:

Technické parametre:
rozpätie | m | 7.5 | 10.5 | 13.5 | 16.5 | 19.5 | 22.5 | 25.5 |
kapacita | T | 1 ~ 12,5 t | ||||||
Celková váha | kilogram | 1781 ~ 12086 | ||||||
Hmotnosť vozíka | kilogram | 405 ~ 740 | ||||||
Max. Zaťaženie kolesa | kn | 13,5 ~ 90,94 | ||||||
Travel rail | P24 ~ P43 | |||||||
Rýchlosť zdvíhania | m / min | 0,8 / 5 | 0,8 / 5 | 0,8 / 5 | 0,8 / 5 | 0,8 / 5 | 0,8 / 5 | 0,8 / 5 |
Výška zdvihu | m | ≥ 6 | ≥ 6 | ≥ 6 | ≥ 6 | ≥ 6 | ≥ 6 | ≥ 6 |
Celkový výkon motora | kw | 4.31 | 4.31 | 4.31 | 4.31 | 4,67 | 4,67 | 4,67 |
Rýchlosť žeriava | m / min | 3-30 | 3-30 | 3-30 | 3-30 | 3-30 | 3-30 | 3-30 |
Rýchlosť vozíka | m / min | 2-20 | 2-20 | 2-20 | 2-20 | 2-20 | 2-20 | 2-20 |
Pracovná povinnosť | M5 / A5 | |||||||


English
हिंदी
Indonesia
România limbi
türkiye
עברית
Cymraeg
hrvatski
Polski
русский
한국어
Català





